《建筑装饰设计》作为建筑装饰技术专业的基础课程,采用全真综合实训模式,包括“方案策划——创意沟通——设计制作——实体呈现——汇报展出”五个阶段,以培养学生的实践操作能力和职业素养。在全真综合实训教学方案的设计与实践中,学生围绕项目方案沟通、室内空间平面图设计等任务,依托问题动机驱动,积极运用所学专业知识,开展自主探索和互动协作的学习过程。本次实践设计案例如下:
楼层: 叠墅3-4层
使用面积:160㎡
位置:盐都区碧桂园凤城北苑东区


户主信息
三代同堂,爷爷奶奶退休在家帮忙带娃,爸爸妈妈体制内稳定工作,“两娃”一男一女,女孩上小学,男孩学龄前儿童
户主需求
楼下为爷爷奶奶居住,楼上父母加孩子居住,且需要可以辅导孩子作业的书房,男孩女孩都要有单独房间,楼上还需有小型的洗衣区域。
在进行本次户型设计之前,学生参观了以科技著称的样板房,深入了解了全屋定制设计公司的一块木板从“材”到“器”的制作过程,广泛阅读了各类设计案例,对居住空间的设计理论有了深入的理解。在经历了户型优化课题的头脑风暴后,学生运用专业工具对毛坯房进行了精确测量,从纸面到空间,从三维到二维,不断调整设计方案,最终完成了一份详尽的设计稿。




现在让我们一起来看一看大家的完成稿吧。
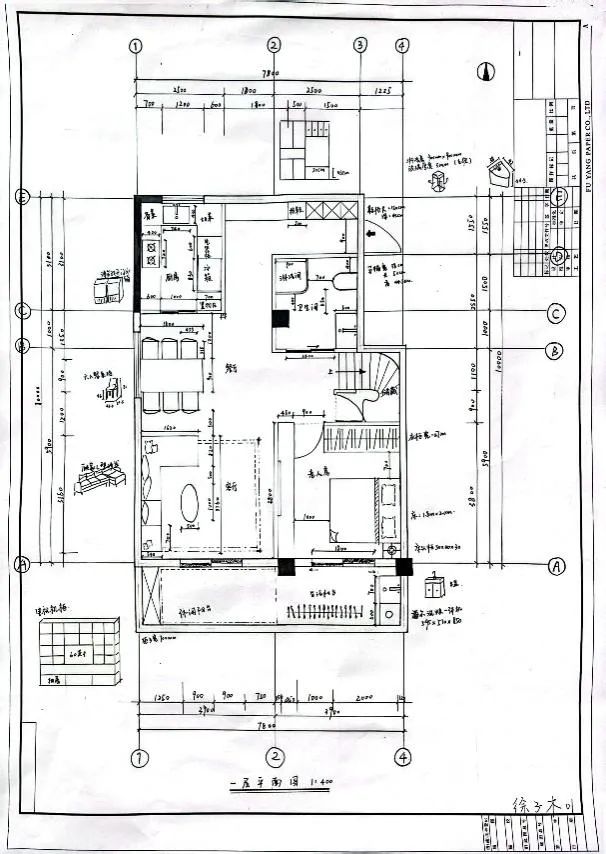
徐子木
本方案追求舒适、放松、简约、宜居的理念,以此设计图纸,整体布局注重流畅性,更倾向于简单中不失大气。家居环境划分清晰,致力打造方便生活的设计。


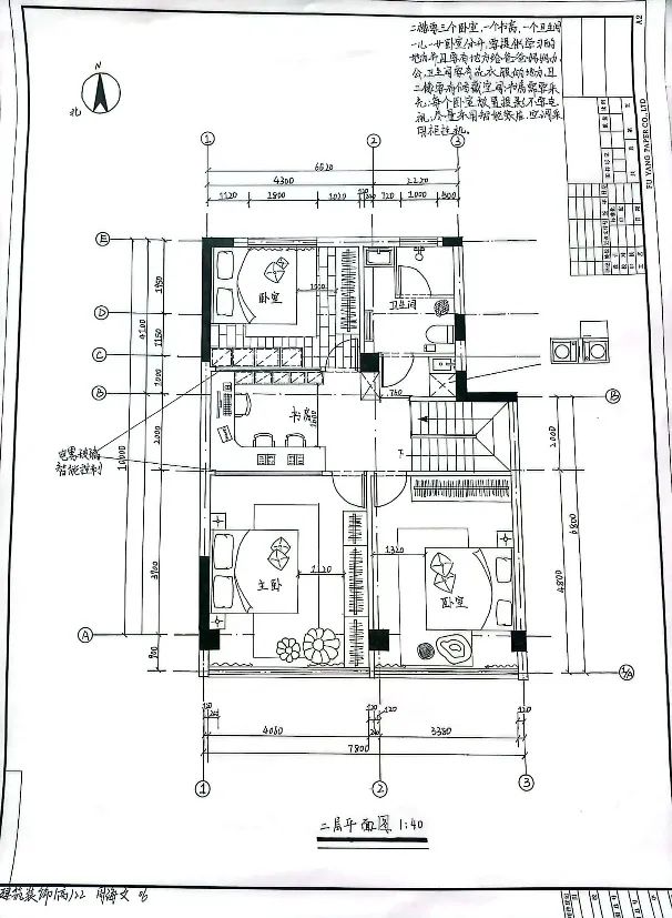
周海文
该建筑是二层叠墅,但空间较为紧凑。需要有休息空间和娱乐空间,在一楼设计玩乐区给小孩,在二楼设计一个借光的书房。该建筑中有很多承重柱需要遮挡,尤其是卫生间,合理将它隐藏起来。


刘正慧
一家六口。整体以现代简约风为主,丰富的装饰元素、触感精致的软装;拆除多余墙体,合理规划空间,空间多元化收纳,开放的客餐厅与阳台,显得整体空间更为通透。

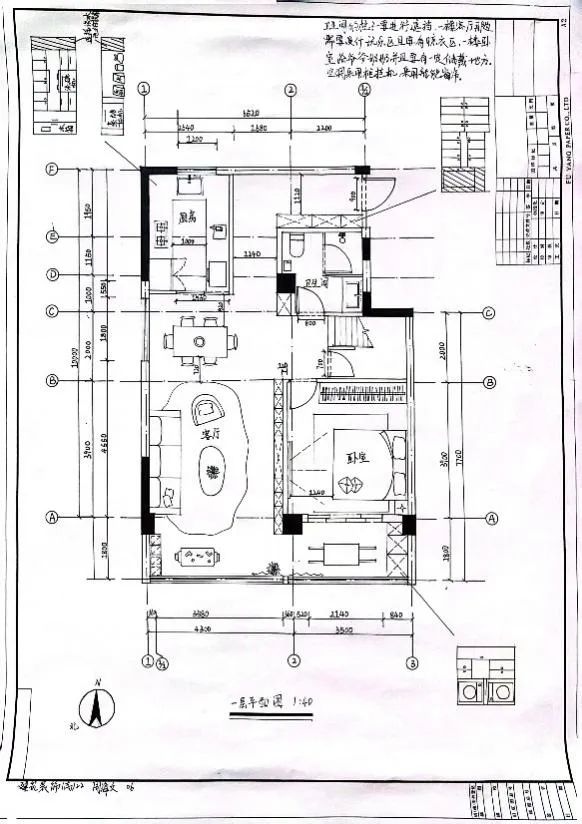
张婧
通过内外建筑的结构特点和业主的家庭情况,将空间划分为一厅一厨一书房两个卫生间两个阳台四个卧室,该空间设计难点在于承重柱的处理,将其融入各个空间,使整个布局更加流畅。

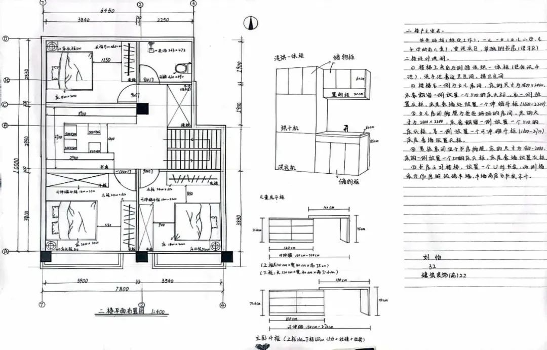
刘怡
从实用的角度,到超载的发挥,构成艺术的主体,室内整体空间中不可缺少的建筑构件如柱子墙面等,结合功能需要加以装饰,可共同构成完美的室内环境。人为的设计生活方式,是为了努力去创造一种更好的生活状态。

此次碧桂园·凤凰城案例的设计任务,使同学们对叠墅式房屋结构有了更为全面且深入的认识。在教师的辅导下,同学们与业主进行了沟通交流,通过了解业主的需求与期望,为下学期继续深入该方案的效果图设计、软装设计搭配打好基础,明确了未来设计工作的方向和目标。
